- トップ
- 中古住宅をエリアから探す
- 厚木市
- 森の里
- 厚木市森の里 中古戸建
厚木市森の里 中古戸建
情報更新日:2026/05/13 次回更新予定日:2026/05/27
所在地神奈川県厚木市森の里4丁目[周辺地図]
交 通小田急小田原線「愛甲石田」駅バス18分 停歩2分






■敷地71坪の広々とした敷地
■南側には陽当たり良好な広いお庭付き
・LDK19帖以上の開放感ある広々としたリビング
・全室南向きで陽当たり良好な間取り
□■SCHOOL INFO■□
森の里小学校まで徒歩約13分
森の里中学校まで徒歩約8分
□■SLE不動産■□
気になるお家は、お気軽にお問い合わせを!
住宅ローンがご心配の方は、実績のある弊社へお任せください。
その他、相続や不動産に関することはワンストップで対応致します。
※お電話の場合:0463-20-9664
※メールの場合:【資料請求】ボタンをクリックでお問い合わせください。
すべての画像
リフォーム完成済みできれいです。 お庭も広く趣味の周防エースとしても利用可能です。
リビングとキッチンがほどよくつながる間取りで、家族のコミュニケーションが自然と生まれる住まいです。お子様の様子を見守りながら調理ができます。
大型ファミリータイプの間取りです。
明るい光がたっぷり差し込む広々リビングは、家族みんながのびのび過ごせる心地よい空間。キッチンや階段への動線もスムーズで、毎日の暮らしがもっと快適に。自然と会話が生まれる、あたたかい住まいです。
リビングの続き間に和室もあり、客間としても利用可能です。
大きな窓から自然光が差し込む、明るく開放的な洋室。家具の配置がしやすいシンプルな間取りで、寝室や子ども部屋、ワークスペースなど多用途にお使いいただけます。
システムキッチン新規交換済み 食洗機や浄水器もついています。
■浴室乾燥機付きユニットバス(追炊き付き) ユニットバスは全てが浴室のために設計されているため、掃除のしやすさやカビの生えにくさ汚れにくさに特化しています。 素材は汚れが付きにくいものが使用され、お手入れが最小限に抑えられる浴室となっております。
デザイナー風のお洒落な洗面所です。
陽当たりの良いバルコニーです。
御庭は家庭菜園やBBQなど楽しめそうです。
防犯対策の門扉付きのカースペースです。
隣地の建物と距離もあり陽当たり良好です。
玄関から広々!光が入る気持ちいい空間✨ ゆとりある玄関です。
大きな掃き出し窓とコーナーサッシからたっぷりと自然光が差し込む、明るく開放的なリビングスペース。 ナチュラルな木目フロアと白基調の内装が、すっきりとした洗練された印象を与えます。
2階新築と陽当たりが良いです。
2階廊下部分もゆとりがあります。
広いキッチンはお料理の幅も広がります。
キッチンに窓もありため、明るいキッチンです。
お洒落な洗面所は、毎日の準備も楽しくさせます。
■ウォシュレット付きトイレ 洗浄機能・脱臭機能を完備、開口窓も設け清潔な室内にすることが可能です。 また温水洗浄便座は、デリケートな皮膚などを清潔に保つことができ、便座も温度調節ができるので、寒い冬も快適にトイレに座ることが可能。
キッチンと洗面所の隣に動線の良いLAUNDRYルームもあります。 香手口を明ければ、ゴミ置場としても利用可能です。
■クローゼット ハンガーポールと枕棚付きのクローゼット 洋服をいっぱいしまったり、枕棚の上には、あまり使用しないものの収納もできます。
2階バルコニーからの眺望です。 緑も見れて清々しい住環境です。
勝手口の先は屋根もあり、荷物置場や府ゴミ箱を置くスペースとしても利用可能です。
隣地との距離もあり開放感あります。
お庭スペースは広く趣味のスペースと相手も利用可能です。
落ち着いた住環境で、子育ても楽しくなります。
シンク
■浄水器一体型水栓 蛇口をひねれば、いつでも美味しい水が飲めるのは大きなメリットです。 ウォーターサーバーやペットボトルをその都度入れるのは大変ですが、シンク内の蛇口から浄水出れば楽に炊事ができますね。
3口ガスコンロ
■3口ガスコンロ 角を極力少なくした、お手入れのしやすい「すっきりクリーンごとく」。3口全てに温度センサーが付き、高温炒め機能付き。片面焼きグリルも搭載しています。消し忘れ消火機能付き、安全で機能的なガスコンロです。
換気扇
■キッチン 換気扇 掃除も行いやすいキッチンの換気扇です。換気扇用フィルターを利用すればお掃除も簡易に済みます。
浴室乾燥機
■浴室乾燥機 基本機能は、乾燥、暖房、換気、涼風、24時間換気の5つです。それぞれの機能に特長があり、毎日使用するにあたり、季節に合った使用方法がありますので、浴室乾燥機は年間を通して使うことができます。
担当スタッフより

- 岡本
- 2026年3月リフォーム済みのため、お引っ越し後はすぐに新生活をスタートしていただけます!
ご見学希望等、お気軽にご相談下さいませ♪
物件詳細情報
物件No.31023786175
| 所在地 | 神奈川県厚木市森の里4丁目 | ||
|---|---|---|---|
| 交通 | 小田急小田原線「愛甲石田」駅バス18分 バス停「森の里四丁目」停歩2分 小田急小田原線「本厚木」駅バス27分 バス停「森の里四丁目」停歩2分 小田急小田原線「愛甲石田」駅徒歩81分 |
||
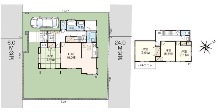
| 間取 | 4LDK+ランドリールーム (和室8帖、LDK19帖、洋室8帖、洋室5.8帖、洋室5.1帖) | ||
| 土地面積 | 237.71m² 公簿 | ||
| 建物面積 | 121.09m² 公簿 | ||
| 構造・規模 | 木造 2階建て | 築年月 | 1996年5月築 |
| バルコニー | 南東向き | 施工会社 | 旧住宅供給公社 |
| 国土法届出 | 不要 | 地目 | 宅地 |
| 用途地域 | 第一種低層住居専用地域 | 建ぺい率 | 50% |
| 容積率 | 80% | 都市計画 | 市街化区域 |
| 駐車スペース | 1台(カースペース) | 現況 | 空家 |
| 引渡時期 | 即引渡可 | 引渡条件 | 現況渡し |
| 権利種類 | 所有権 | 接道 | 南西側6M公道に15.5M接道 北東側24M公道に接道 |
| 小学校区 | 森の里小学校(1040m) | 中学校区 | 森の里中学校(640m) |
| 取引態様 | 媒介 | ||
| リフォーム |
|
||
| 設備 | 公営水道、本下水、都市ガス | ||
| その他制限事項 | 景観法、宅地造成工事規制区域 | ||
こだわり項目
- ※価格は物件の代金総額を表示しており、消費税が課税される場合は税込み価格です。(1,000円未満は切り上げ。)
税率は引き渡し時期により異なりますので、各物件の詳細につきましてはお問い合わせください。 - ※敷地権利が借地権のものは価格に権利金を含みます。
- ※制作中に内容が変更される場合もありますので、あらかじめご了承ください。
- ※購入の前には物件内容や契約条件についてご自身で十分な確認をしていただくようにお願いいたします。
- ※完成予想図はいずれも外構、植栽、外観等実際のものとは多少異なることがあります。
- ※CG合成の画像の場合、実際とは多少異なる場合があります。
周辺地図
周辺施設一覧
- ショッピングセンター
- スーパー
- コンビニ
- ドラッグストア
- ホームセンター
- 飲食店
- その他店舗
- 商店街
- 大学
- 専門学校
- 高校・高専
- 中学校
- 小学校
- 保育園
- 幼稚園
- 公民館・児童館
- 病院
- 郵便局
- 役所
- 図書館
- 金融機関
- 警察・消防
- 趣味・娯楽施設
- 公園・運動施設
- 周辺の街並み
- 駅
- その他
お問い合せ先
- 湘南レーベル(株)SLE不動産
- お電話でのお問い合わせは
0463-20-9664「ホームページを見た」とお問い合わせください - 神奈川県伊勢原市桜台1-9-7 堀井ビル1F
- 営業時間:AM09:30~PM18:30
- 定休日:火曜日・水曜日
- 免許番号:神奈川県知事(4)第026678号
- トップ
- 中古住宅をエリアから探す
- 厚木市
- 森の里
- 厚木市森の里 中古戸建






















