- トップ
- 新築一戸建てをエリアから探す
- 平塚市
- 立野町
- 2号棟 平塚市立野町 2期 全2棟 新築戸建
新築一戸建て
2号棟 平塚市立野町 2期 全2棟 新築戸建
情報更新日:2026/04/27 次回更新予定日:2026/05/11
所在地神奈川県平塚市立野町[周辺地図]
交 通東海道本線「平塚」駅徒歩15分



~収納充実/南向きで陽当たり良好な新築分譲住宅~
■全棟19帖以上の開放感ある広々としたリビング
■リビングイン階段のある間取りはコミュニケーションが増えます
・暮らしを彩る充実した設備や仕様
・お財布に嬉しい都市ガスエリア
□■SCHOOL INFO■□
崇善小学校まで徒歩約6分
中学校まで徒歩約7分
□■SLE不動産■□
気になるお家は、お気軽にお問い合わせを!
住宅ローンがご心配の方は、実績のある弊社へお任せください。
その他、相続や不動産に関することはワンストップで対応致します。
※お電話の場合:0463-20-9664
※メールの場合:【資料請求】ボタンをクリックでお問い合わせください。
■全棟19帖以上の開放感ある広々としたリビング
■リビングイン階段のある間取りはコミュニケーションが増えます
・暮らしを彩る充実した設備や仕様
・お財布に嬉しい都市ガスエリア
□■SCHOOL INFO■□
崇善小学校まで徒歩約6分
中学校まで徒歩約7分
□■SLE不動産■□
気になるお家は、お気軽にお問い合わせを!
住宅ローンがご心配の方は、実績のある弊社へお任せください。
その他、相続や不動産に関することはワンストップで対応致します。
※お電話の場合:0463-20-9664
※メールの場合:【資料請求】ボタンをクリックでお問い合わせください。
担当スタッフより

- 加藤
- 2026年10月上旬完成予定です。
詳細など気になることはお気軽にご相談くださいませ!
各棟情報
物件詳細情報
物件No.31023526895-002
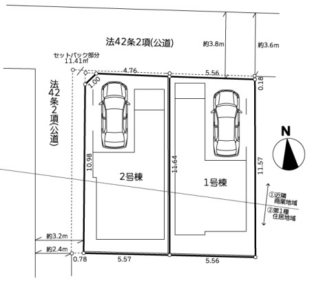
| 所在地 | 神奈川県平塚市立野町 | ||
|---|---|---|---|
| 交通 | 東海道本線「平塚」駅徒歩15分 東海道本線「平塚」駅バス7分 バス停「立野町」停歩2分 小田急小田原線「伊勢原」駅バス30分 バス停「立野町」停歩2分 |
||
| 間取 | 3LDK (洋室6.99帖、LDK20.18帖、洋室7.43帖、洋室6.34帖) | ||
| 土地面積 | 64.24m² | ||
| 建物面積 | 114m² (車庫面積11.51平米含む。) | ||
| 販売戸数 | 2戸 | 総戸数 | 全2戸 |
| 構造・規模 | 木造 3階建て | 築年・入居 | 2026年10月上旬 |
| バルコニー | 南向き | 建物現況 | 建築中 |
| 建築確認番号 | 第KBI-SGM26-10-0062号 | 駐車スペース | 1台(車庫) |
| 引渡時期 | 期日指定有(2026年11月上旬) | 国土法届出 | 不要 |
| 地目 | 宅地 | 用途地域 | 近隣商業地域/第一種住居地域 |
| 建ぺい率 | 80% | 容積率 | 300%/200% |
| 都市計画 | 市街化区域 | 権利種類 | 所有権 |
| 接道 | 北側3.6M公道に接道 | 小学校区 | 崇善小学校(420m) |
| 中学校区 | 江陽中学校(550m) | 取引態様 | 媒介 |
| 設備 | 公営水道、本下水、都市ガス | ||
| その他制限事項 | 宅地造成工事規制区域、高度地区、準防火地域 | ||
こだわり項目
LDK15帖以上制震構造南向き床下収納全居室収納食器洗浄機浄水器システムキッチンカウンターキッチン3口以上コンロトイレ2ヶ所浴室乾燥機浴室暖房追焚機能TV付浴室浴室に窓全居室フローリングリビング階段ウォークインクローゼットTVモニタ付インターホンスマートキー小学校800m以内陽当り良好通風良好公園800m以内コンビニ400m以内
- ※価格は物件の代金総額を表示しており、消費税が課税される場合は税込み価格です。(1,000円未満は切り上げ。)
税率は引き渡し時期により異なりますので、各物件の詳細につきましてはお問い合わせください。 - ※敷地権利が借地権のものは価格に権利金を含みます。
- ※制作中に内容が変更される場合もありますので、あらかじめご了承ください。
- ※購入の前には物件内容や契約条件についてご自身で十分な確認をしていただくようにお願いいたします。
- ※完成予想図はいずれも外構、植栽、外観等実際のものとは多少異なることがあります。
- ※CG合成の画像の場合、実際とは多少異なる場合があります。
周辺地図
周辺施設一覧
- ショッピングセンター
- スーパー
- コンビニ
- ドラッグストア
- ホームセンター
- 飲食店
- その他店舗
- 商店街
- 大学
- 専門学校
- 高校・高専
- 中学校
- 小学校
- 保育園
- 幼稚園
- 公民館・児童館
- 病院
- 郵便局
- 役所
- 図書館
- 金融機関
- 警察・消防
- 趣味・娯楽施設
- 公園・運動施設
- 周辺の街並み
- 駅
- その他
お問い合せ先
- 湘南レーベル(株)SLE不動産
- お電話でのお問い合わせは
0463-20-9664「ホームページを見た」とお問い合わせください - 神奈川県伊勢原市桜台1-9-7 堀井ビル1F
- 営業時間:AM09:30~PM18:30
- 定休日:火曜日・水曜日
- 免許番号:神奈川県知事(4)第026678号
- トップ
- 新築一戸建てをエリアから探す
- 平塚市
- 立野町
- 2号棟 平塚市立野町 2期 全2棟 新築戸建


















