- トップ
- 新築一戸建てをエリアから探す
- 厚木市
- まつかげ台
- 厚木市まつかげ台 第1期 全1棟
新築一戸建て

厚木市まつかげ台 第1期 全1棟
情報更新日:2026/02/04 次回更新予定日:2026/02/18
所在地神奈川県厚木市まつかげ台[周辺地図]
交 通小田急小田原線「本厚木」駅バス36分 停歩5分






【駐車3台可】ずっと安心して暮らせる住まい、長期優良住宅
■LDK19帖の開放感ある広々としたリビング
■2部屋行き来できるワイドバルコニー/南向き
・リビングイン階段はコミュニケーションが増えます
・各居室収納付きのためお部屋を最大限有効活用◎
□■SLE不動産■□
【気になるお家は、お気軽にお問い合わせを】
住宅ローンがご心配の方は、実績のある弊社へお任せください。
その他、相続や不動産に関することはワンストップで対応致します。
※お電話の場合:0463-20-9664
※メールの場合:【資料請求】ボタンをクリックでお問い合わせください。
■LDK19帖の開放感ある広々としたリビング
■2部屋行き来できるワイドバルコニー/南向き
・リビングイン階段はコミュニケーションが増えます
・各居室収納付きのためお部屋を最大限有効活用◎
□■SLE不動産■□
【気になるお家は、お気軽にお問い合わせを】
住宅ローンがご心配の方は、実績のある弊社へお任せください。
その他、相続や不動産に関することはワンストップで対応致します。
※お電話の場合:0463-20-9664
※メールの場合:【資料請求】ボタンをクリックでお問い合わせください。
すべての画像
広々とした南庭付き&駐車3台可能(車種による) ゆとりある敷地で新たな生活をスタートしてみませんか?
北西角地で前面道路は約6.5mのため、比較的車通りが少なくラクラク駐車が可能です。
区画図
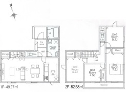
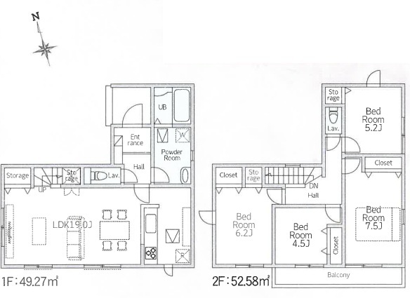
間取り
敷地50坪超・長期優良住宅のため、安心して暮らせるお住まいです
まずはお気軽にお問い合わせをお待ちしております
広々とした青空がよく映える住宅となっております
ひろーい南庭でお子様やペットと多目的にご利用いただけます
担当スタッフより

- 加藤
- 2026年3月下旬完成予定です。
詳細など気になることはお気軽にご相談くださいませ!
物件詳細情報
物件No.31022879088
| 所在地 | 神奈川県厚木市まつかげ台 | ||
|---|---|---|---|
| 交通 | 小田急小田原線「本厚木」駅バス36分 バス停「まつかげ台」停歩5分 小田急小田原線「本厚木」駅バス29分 バス停「みはる野二丁目」停歩9分 小田急小田原線「本厚木」駅バス45分 バス停「泉」停歩11分 |
||
| 間取 | 4LDK (LDK19帖、洋室7.5帖、洋室6.2帖、洋室5.2帖、洋室4.5帖) | ||
| 土地面積 | 167.51m² 実測 | ||
| 建物面積 | 101.85m² 実測 | ||
| 販売戸数 | 1戸 | 総戸数 | 全1戸 |
| 構造・規模 | 木造 2階建て | 築年・入居 | 2026年3月下旬 |
| バルコニー | 南向き | 建物現況 | 建築中 |
| 建築確認番号 | 第KS125-3120-52238号 | 駐車スペース | 3台(カースペース) |
| 引渡時期 | 期日指定有(2026年4月下旬) | 国土法届出 | 不要 |
| 地目 | 宅地 | 用途地域 | 第一種低層住居専用地域 |
| 建ぺい率 | 50% | 容積率 | 100% |
| 都市計画 | 市街化区域 | 権利種類 | 所有権 |
| 接道 | 西側6.5M公道に12.2M接道 北側4.7M公道に8.5M接道 |
小学校区 | 上荻野小学校(1250m) |
| 中学校区 | 萩野中学校(2150m) | 取引態様 | 媒介 |
| 設備 | 公営水道、本下水 都市ガス,電気,上水道,下水道,システムキッチン,給湯,トイレ2箇所,温水洗浄便座,バス1坪以上,フローリング,複層ガラス,24時間換気システム,収納スペース,床下収納,ディンプルキー,モニター付きインターホン,火災警報器等設置済 建設住宅性能評価取得(予定含む) |
||
| 省エネ性能表示 | エネルギー消費性能:★★★★ 断熱性能:6段階 目安光熱費:約19.1万円/年 |
||
| 備考・制限等 | 駐車スペース車種により3台駐車可。 | ||
こだわり項目
角地閑静な住宅地LDK15帖以上耐震構造省エネ・エコ住宅長期優良住宅南向き南庭庭床下収納全居室収納ワイドバルコニー複層ガラスシステムキッチンカウンターキッチン3口以上コンロトイレ2ヶ所温水洗浄便座追焚機能浴室に窓全居室フローリングリビング階段24時間換気システム公園800m以内陽当り良好通風良好フラット35Sに対応
- ※価格は物件の代金総額を表示しており、消費税が課税される場合は税込み価格です。(1,000円未満は切り上げ。)
税率は引き渡し時期により異なりますので、各物件の詳細につきましてはお問い合わせください。 - ※敷地権利が借地権のものは価格に権利金を含みます。
- ※制作中に内容が変更される場合もありますので、あらかじめご了承ください。
- ※購入の前には物件内容や契約条件についてご自身で十分な確認をしていただくようにお願いいたします。
- ※完成予想図はいずれも外構、植栽、外観等実際のものとは多少異なることがあります。
- ※CG合成の画像の場合、実際とは多少異なる場合があります。
周辺地図
周辺施設一覧
- ショッピングセンター
- スーパー
- コンビニ
- ドラッグストア
- ホームセンター
- 飲食店
- その他店舗
- 商店街
- 大学
- 専門学校
- 高校・高専
- 中学校
- 小学校
- 保育園
- 幼稚園
- 公民館・児童館
- 病院
- 郵便局
- 役所
- 図書館
- 金融機関
- 警察・消防
- 趣味・娯楽施設
- 公園・運動施設
- 周辺の街並み
- 駅
- その他
お問い合せ先
- 湘南レーベル(株)SLE不動産
- お電話でのお問い合わせは
0463-20-9664「ホームページを見た」とお問い合わせください - 神奈川県伊勢原市桜台1-9-7 堀井ビル1F
- 営業時間:AM09:30~PM18:30
- 定休日:火曜日・水曜日
- 免許番号:神奈川県知事(4)第026678号
- トップ
- 新築一戸建てをエリアから探す
- 厚木市
- まつかげ台
- 厚木市まつかげ台 第1期 全1棟



















