- トップ
- 中古住宅をエリアから探す
- 平塚市
- めぐみが丘
- 平塚市めぐみが丘 中古戸建
平塚市めぐみが丘 中古戸建
情報更新日:2025/11/14 次回更新予定日:2025/11/24
所在地神奈川県平塚市めぐみが丘2丁目[周辺地図]
交 通東海道本線「平塚」駅バス23分 停歩3分






◆2025年9月に内外装フルリフォーム済み
◇並列3台駐車可能・前面道路幅員5m
◆ウッドデッキ付の広々南庭有り◎
◇環境とお財布に優しい「都市ガス」採用
◆全居室6帖以上のゆとりある4LDK 住宅
◇平日や遅めの時間からのご見学も可能
□■SLE不動産■□
【気になるお家は、お気軽にお問い合わせを】
住宅ローンがご心配の方は、実績のある弊社へお任せください。
その他、相続や不動産に関することはワンストップで対応致します。
※お電話の場合:0463-20-9664
※メールの場合:【資料請求】ボタンをクリックでお問い合わせください。
すべての画像
「都市ガス」「並列3台駐車」「ウッドデッキ付き広々南庭」「内外装フルリフォーム済み」と魅力の詰まった住宅のご紹介です。
LDKは広々と17帖ございます。こちらのリビングでごゆっくりと家族団欒のお時間をお楽しみください。
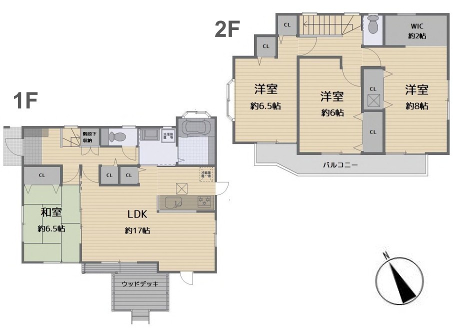
間取り
庭
対面式キッチンは、家族の会話が増える素敵な間取りとなっております。こちらのキッチンで美味しい料理と素敵な思い出をご一緒にどうぞ。
内外装ともにフルリフォーム済みとなっております。お写真では伝わらない良さがきっとお分かりいただけます。
家具の配置しやすい間取りとなっております。あのお店で見た気になる家具もきっとお似合いです。
キッチンスペースもしっかりと確保されております。また、キッチン上部と下部、隣には収納がございますのでスッキリとお使い頂けそうです。
食洗器や3口コンロ、魚焼きグリルがございますので、お料理の効率と幅が広がってきそうです。
LDK横には6.5帖の和室スペースがございます。リビングでくつろぐも良し。和室でくつろぐも良し。ごゆっくりとお過ごしいただけそうです。
和室スペースは心安らぐ素敵な空間です。LDKと併せて23.5帖の一階は広々としております。
こちらはWICスペースと併せて10帖の主寝室となります。広々としたおりますので余裕のある生活を送ることが出来そうです。
全居室6帖以上で収納が付いております。収納をうまく活用することでお部屋を最大限い広くお使い頂けます。
お洗濯物を干すスペースとしてご利用できるバルコニーは3部屋に続くワイドな造りとなっております。
2面採光の明るいお部屋ですね。明るいお部屋は自然と気持ちまで明るくなってきそうです。
出窓によって開放感のあるお部屋となっております。クロスとフローリングもリフォーム済みのため清潔感のあるお部屋です。
こちらの物件を夢のマイホームにいかがでしょうか。即日予約も承っておりますのでお気軽にご連絡下さい。
お風呂は、通常より大きめのユニットバスを採用しております。ごゆっくりとバスタイムをお楽しみください。
三面鏡タイプの洗面台を採用しておりますのでお支度の際も安心です。鏡裏と足元にも収納がございますので、スッキリとお使い頂けそうです。
トイレは1階と2階にそれぞれ完備しております。水回り一式の交換済みになりますので清潔感がございますね。
玄関には靴の収納はもちろん、ペットのお散歩道具やスポーツ用品も収納できそうです。
前面は約5.0mございますので駐車の際も楽々です。また、並列3台駐車可能ですのでご家族やご友人が来られた際も比較的安心です。
担当スタッフより

- 岡本
- 「都市ガス」「並列3台駐車」「ウッドデッキ付き広々南庭」「内外装フルリフォーム済み」と魅力の詰まった住宅のご紹介です。即日予約も承っておりますので少しでも気になる方はお気軽にお問い合わせ下さい。
物件詳細情報
物件No.31021573919
| 所在地 | 神奈川県平塚市めぐみが丘2丁目 | ||
|---|---|---|---|
| 交通 | 東海道本線「平塚」駅バス23分 バス停「めぐみが丘西」停歩3分 東海道本線「平塚」駅徒歩94分 小田急小田原線「鶴巻温泉」駅徒歩68分 |
||
| 間取 | 4LDK (和室6.5帖、LDK17帖、洋室8帖、洋室6.5帖、洋室6帖) | ||
| 土地面積 | 202.36m² 公簿 | ||
| 建物面積 | 110.13m² 公簿 | ||
| 構造・規模 | 木造 2階建て | 築年月 | 2004年8月築 |
| バルコニー | 南向き | 国土法届出 | 不要 |
| 地目 | 宅地 | 用途地域 | 第一種低層住居専用地域 |
| 建ぺい率 | 50% | 容積率 | 80% |
| 都市計画 | 市街化区域 | 駐車スペース | 3台(カースペース) |
| 現況 | 空家 | 引渡時期 | 即引渡可 |
| 権利種類 | 所有権 | 接道 | 北西側5M公道に17.6M接道 |
| 小学校区 | 吉沢小学校(650m) | 中学校区 | 土沢中学校(2500m) |
| 取引態様 | 媒介 | ||
| リフォーム |
|
||
| 設備 | 公営水道、本下水、都市ガス | ||
| 備考・制限等 | 地区計画区域。カースペース車種により3台駐車可。 | ||
こだわり項目
- ※価格は物件の代金総額を表示しており、消費税が課税される場合は税込み価格です。(1,000円未満は切り上げ。)
税率は引き渡し時期により異なりますので、各物件の詳細につきましてはお問い合わせください。 - ※敷地権利が借地権のものは価格に権利金を含みます。
- ※制作中に内容が変更される場合もありますので、あらかじめご了承ください。
- ※購入の前には物件内容や契約条件についてご自身で十分な確認をしていただくようにお願いいたします。
- ※完成予想図はいずれも外構、植栽、外観等実際のものとは多少異なることがあります。
- ※CG合成の画像の場合、実際とは多少異なる場合があります。
周辺地図
周辺施設一覧
- ショッピングセンター
- スーパー
- コンビニ
- ドラッグストア
- ホームセンター
- 飲食店
- その他店舗
- 商店街
- 大学
- 専門学校
- 高校・高専
- 中学校
- 小学校
- 保育園
- 幼稚園
- 公民館・児童館
- 病院
- 郵便局
- 役所
- 図書館
- 金融機関
- 警察・消防
- 趣味・娯楽施設
- 公園・運動施設
- 周辺の街並み
- 駅
- その他
お問い合せ先
- 湘南レーベル(株)SLE不動産
- お電話でのお問い合わせは
0463-20-9664「ホームページを見た」とお問い合わせください - 神奈川県伊勢原市桜台1-9-7 堀井ビル1F
- 営業時間:AM09:30~PM18:30
- 定休日:火曜日・水曜日
- 免許番号:神奈川県知事(4)第026678号
- トップ
- 中古住宅をエリアから探す
- 平塚市
- めぐみが丘
- 平塚市めぐみが丘 中古戸建
















