- トップ
- 新築一戸建てをエリアから探す
- 伊勢原市
- 沼目
- 5号棟 伊勢原市沼目 全5棟 新築戸建
新築一戸建て
5号棟 伊勢原市沼目 全5棟 新築戸建
情報更新日:2025/12/01 次回更新予定日:2025/12/15
所在地神奈川県伊勢原市沼目4丁目[周辺地図]
交 通小田急小田原線「伊勢原」駅バス6分 停歩1分






【ZEH水準省エネ住宅】全棟南向きで陽当たり良好な新築分譲住宅
■カースペース2~3台駐車可※車種による
■全棟46坪超のゆとりある敷地
・全棟:ゆとりある安庭付き
・LDK16帖以上の広々としたリビング
・各居室収納付きのためお部屋を最大限有効活用可
・全棟明かりの入るまどりで、明るいリビングです。
□■SLE不動産■□
【気になるお家は、お気軽にお問い合わせを】
住宅ローンがご心配の方は、実績のある弊社へお任せください。
その他、相続や不動産に関することはワンストップで対応致します。
※お電話の場合:0463-20-9664
※メールの場合:【資料請求】ボタンをクリックでお問い合わせください。
■カースペース2~3台駐車可※車種による
■全棟46坪超のゆとりある敷地
・全棟:ゆとりある安庭付き
・LDK16帖以上の広々としたリビング
・各居室収納付きのためお部屋を最大限有効活用可
・全棟明かりの入るまどりで、明るいリビングです。
□■SLE不動産■□
【気になるお家は、お気軽にお問い合わせを】
住宅ローンがご心配の方は、実績のある弊社へお任せください。
その他、相続や不動産に関することはワンストップで対応致します。
※お電話の場合:0463-20-9664
※メールの場合:【資料請求】ボタンをクリックでお問い合わせください。
担当スタッフより

- 加藤
- 1~3号棟完成済みのためいつでもご見学いただけます!
詳細など気になることはお気軽にご相談くださいませ。
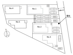
各棟情報
物件詳細情報
物件No.31020765089-005
| 所在地 | 神奈川県伊勢原市沼目4丁目 | ||
|---|---|---|---|
| 交通 | 小田急小田原線「伊勢原」駅バス6分 バス停「沼目」停歩1分 東海道本線「平塚」駅バス35分 バス停「沼目」停歩1分 小田急小田原線「伊勢原」駅徒歩25分 |
||
| 間取 | 4LDK | ||
| 土地面積 | 221.92m² | ||
| 建物面積 | 105.16m² | ||
| 販売戸数 | 5戸 | 総戸数 | 全5戸 |
| 構造・規模 | 木造 2階建て | 築年・入居 | 2025年12月 |
| バルコニー | 南向き | 建物現況 | 建築中 |
| 建築確認番号 | 第KBI-SGM25-10-1826号 | 駐車スペース | 3台(カースペース) |
| 引渡時期 | 期日指定有(2026年1月下旬) | 国土法届出 | 不要 |
| 地目 | 宅地 | 用途地域 | 第一種低層住居専用地域 |
| 建ぺい率 | 50% | 容積率 | 100% |
| 都市計画 | 市街化区域 | 権利種類 | 所有権 |
| 接道 | 東側4.5M公道に接道 | 小学校区 | 大田小学校(550m) |
| 中学校区 | 伊勢原中学校(1720m) | 取引態様 | 媒介 |
| 設備 | 公営水道、本下水、個別LPG システムキッチン・ウォシュレット付きトイレ・網戸・ペアガラス等 |
||
| 備考・制限等 | 駐車スペース車種により3台駐車可。 | ||
こだわり項目
平坦地緑豊かな住宅地閑静な住宅地LDK15帖以上省エネ・エコ住宅デザイナーズハウス南向き庭床下収納全居室収納複層ガラス浄水器省エネ給湯器ガスコンロシステムキッチンカウンターキッチン3口以上コンロトイレ2ヶ所温水洗浄便座シャワー付洗面台浴室乾燥機追焚機能浴室1坪以上浴室に窓オートバスTVモニタ付インターホン小学校800m以内保育園・幼稚園800m以内陽当り良好通風良好フラット35Sに対応
- ※価格は物件の代金総額を表示しており、消費税が課税される場合は税込み価格です。(1,000円未満は切り上げ。)
税率は引き渡し時期により異なりますので、各物件の詳細につきましてはお問い合わせください。 - ※敷地権利が借地権のものは価格に権利金を含みます。
- ※制作中に内容が変更される場合もありますので、あらかじめご了承ください。
- ※購入の前には物件内容や契約条件についてご自身で十分な確認をしていただくようにお願いいたします。
- ※完成予想図はいずれも外構、植栽、外観等実際のものとは多少異なることがあります。
- ※CG合成の画像の場合、実際とは多少異なる場合があります。
周辺地図
周辺施設一覧
- ショッピングセンター
- スーパー
- コンビニ
- ドラッグストア
- ホームセンター
- 飲食店
- その他店舗
- 商店街
- 大学
- 専門学校
- 高校・高専
- 中学校
- 小学校
- 保育園
- 幼稚園
- 公民館・児童館
- 病院
- 郵便局
- 役所
- 図書館
- 金融機関
- 警察・消防
- 趣味・娯楽施設
- 公園・運動施設
- 周辺の街並み
- 駅
- その他
お問い合せ先
- 湘南レーベル(株)SLE不動産
- お電話でのお問い合わせは
0463-20-9664「ホームページを見た」とお問い合わせください - 神奈川県伊勢原市桜台1-9-7 堀井ビル1F
- 営業時間:AM09:30~PM18:30
- 定休日:火曜日・水曜日
- 免許番号:神奈川県知事(4)第026678号
- トップ
- 新築一戸建てをエリアから探す
- 伊勢原市
- 沼目
- 5号棟 伊勢原市沼目 全5棟 新築戸建

















