- トップ
- 新築一戸建てをエリアから探す
- 厚木市
- 上依知
- 厚木市上依知 第30 全6棟 新築戸建
厚木市上依知 第30 全6棟 新築戸建
情報更新日:2025/11/03 次回更新予定日:2025/11/14 取引条件有効期限:2025/11/14
所在地神奈川県厚木市上依知[周辺地図]
交 通相模線「原当麻」駅バス11分 停歩7分






■全棟16帖以上の開放感ある広々としたLDK
■各居室収納付きのためお部屋を最大限有効活用可能
・省エネラベルの表示内容によって、光熱費の節約につながります
・南向きのため晴れた日には洗濯物が良く乾きます
・制振装置により、地震の揺れを抑え、耐震性能を維持!
・耐震性能と制振性能を備えた地震に強い家
□■SLE不動産■□
【気になるお家は、お気軽にお問い合わせを♪】
住宅ローンがご心配の方は、実績のある弊社へお任せください。
その他、相続や不動産に関することはワンストップで対応致します。
※お電話の場合:0463-20-9664
※メールの場合:【資料請求】ボタンをクリックでお問い合わせください。
- すべて(45)
- 外観・パース(27)
- 内観(0)
- 間取・区画(4)
- その他(0)
- 動画
すべての画像
【駐車2台可】毎日の暮らしに嬉しい並列駐車スペースをしっかり確保。
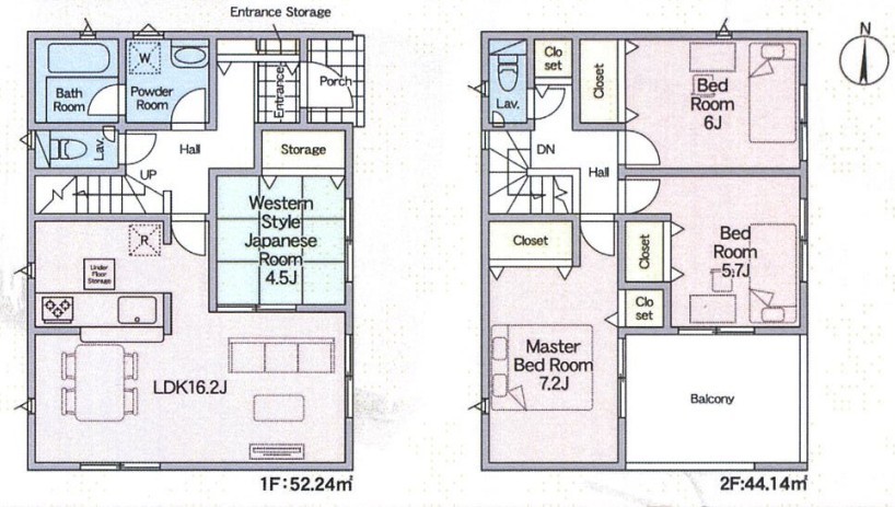
間取り
1号棟 【駐車並列2台】車通りが少なく、落ち着いた環境なので、お子さまの外遊びや自転車の練習も安心。
1号棟
1号棟 毎日の車の出し入れもスムーズにできる、ゆとりある前面道路に面した住まいです。
1号棟 住宅街ならではの落ち着きと、便利さを両立した立地条件も、ぜひ現地で体感してみてください。
1号棟 ご家族やご友人を招く際も、駐車や出入りにストレスを感じることなく過ごしていただけます。
1号棟 夜間でも街灯が設置されているため、防犯面でも安心感のある住環境となっています
1号棟 外からの印象も、暮らし心地も、どちらも満足いただけるお住まいです。
1号棟 外水栓も備えているため、車や自転車のお手入れ、ガーデニングにも便利です。
1号棟
1号棟 玄関までのアプローチは、雨の日でも安心のフラット設計。
1号棟 各部屋には使い勝手の良い収納スペースを確保。生活感を隠してスッキリとした暮らしを実現します。
1号棟 2面採光でたっぷり自然光が入り、日中も照明入らずの明るさ◎
3号棟
3号棟
5号棟 【駐車2台可】外からの印象も、暮らし心地も、どちらも満足いただけるお住まいです。
5号棟
5号棟
5号棟 前面道路の幅が広いことで、開放感があり、日当たりや風通しも良好な立地です。
5号棟 2面採光でたっぷり自然光が入り、日中も照明入らずの明るさ◎
5号棟 住宅街ならではの落ち着きと、便利さを両立した立地条件も、ぜひ現地で体感してみてください。
5号棟 帰るたび、家族を迎えてくれる広々とした玄関スペース。
■浄水器一体型水栓
蛇口をひねれば、いつでも美味しい水が飲めるのは大きなメリットです。 ウォーターサーバーやペットボトルをその都度入れるのは大変ですが、シンク内の蛇口から浄水出れば楽に炊事ができますね。
■ガスコンロ
三ツ口コンロで、お料理の幅が広がります。グリル付き。
■キッチン 換気扇
掃除も行いやすいキッチンの換気扇です。換気扇用フィルターを利用すればお掃除も簡易に済みます。
■浴室乾燥機
基本機能は、乾燥、暖房、換気、涼風、24時間換気の5つです。それぞれの機能に特長があり、毎日使用するにあたり、季節に合った使用方法がありますので、浴室乾燥機は年間を通して使うことができます。
■三面鏡洗面台 シャワーヘッド付き
三面鏡は真正面から見ただけでは気付けない色んな角度から確認でき、収納スペースが豊富であるということがメリットです。 また、シャワーヘッド付きの水栓です。
■ウォシュレット付きトイレ
洗浄機能・脱臭機能を完備、開口窓も設け清潔な室内にすることが可能です。 また温水洗浄便座は、デリケートな皮膚などを清潔に保つことができ、便座も温度調節ができるので、寒い冬も快適にトイレに座ることが可能。
■地盤調査
外部機関に委託してa地盤を一棟ごとに調査。建物の形状と建てる位置が決まってから調査を依頼し、複数のポイントで地下10mまでの地盤の固さを測定します。同じ土地でも、位置によって地盤の固さが異なる場合があるからです。
■制震装置SAFE365
粘弾性素材を活用したもの。この素材は高層ビルの制震装置にも使われており、優れた地震エネルギーの吸収を実現(震度6強を最大67%低減 ※1)。さらに、最大震度6強クラスとなる120秒間続く地震を約200回受けても制震性能は衰えないと実証実験で分かっています。
■ベタ基礎
全戸の基礎の主筋に、16mm鉄筋。 通常の木造住宅のベタ基礎工事においては、13mm鉄筋が多く使われます。しかし、当社では自主基準として全戸の基礎の主筋に16mm鉄筋を採用。
■地震にも強い、安全・安心・快適設計
一級建築士事務所として培った、建築技術に加え、徹底した施工管理により、安心してお住まいいただける住宅をご提供いたします。
■グラスウール断熱材
当社では社員や職人さんにガラス繊維協会の実践するマイスター認定の取得を奨励しています。同時に、断熱材自体の貼りやすさの研究も行い、キレイに貼りやすい断熱材の開発と貼り方の施工技術を構築し、実践しています。
■耐震 + 制震の家、QUIE(クワイエ)
当社の2階建分譲住宅は、建築基準法で定められた壁量の1.5倍に達する十分な性能を誇っています。さらにその耐久性を上げるために、共同開発による制震装置(SAFE365)を完成。
■住宅性能評価《設計性能評価・建設性能評価》
5分野7項目で一番高い等級取得を標準化している 国に登録している第三者機関が、同一の基準によって、住宅の性能を10の分野で評価するものです。いわば、住宅の成績表みたいなものです。
■ダイライト工法
耐力面材として、ダイライトは、永く愛用されています。 高強度、防耐火、軽量、優れた透湿性、高耐久、ゼロアスベスト、低ホルムアルデヒドなど、 多彩な特長を備えています。
担当スタッフより

- 矢崎
- 駐車2~3台可能な新築戸建(全6棟)のご紹介です。棟によっては、お庭付きのためガーデニングもお楽しみいただけそうです。即日予約も可能ですのでお気軽にお問い合わせ下さい。
各棟情報
物件詳細情報
物件No.31020602962
| 所在地 | 神奈川県厚木市上依知 | ||
|---|---|---|---|
| 交通 | 相模線「原当麻」駅バス11分 バス停「上依知」停歩7分 小田急小田原線「本厚木」駅バス41分 バス停「上依知」停歩7分 相模線「下溝」駅徒歩35分 |
||
| 間取 | 3LDK~4LDK | ||
| 土地面積 | 131.69m² ~ 139.1m² 公簿 | ||
| 建物面積 | 95.57m² ~ 96.39m² 公簿 | ||
| 販売戸数 | 3戸 | 総戸数 | 全6戸 |
| 構造・規模 | 木造 2階建て | 築年・入居 | 2025年11月上旬 |
| バルコニー | 南向き | 建物現況 | 建築中 |
| 建築確認番号 | 第KBI-SGM25-10-2436号、他 | 駐車スペース | 2台(カースペース) |
| 引渡時期 | 期日指定有(2025年11月下旬) | 国土法届出 | 不要 |
| 地目 | 宅地 | 用途地域 | 第一種中高層住居専用地域 |
| 建ぺい率 | 60% | 容積率 | 200% |
| 都市計画 | 市街化区域 | 権利種類 | 所有権 |
| 接道 | 南側4.5M公道に接道 | 小学校区 | 上依知小学校(1000m) |
| 中学校区 | 藤塚中学校(1750m) | 取引態様 | 媒介 |
| 設備 | 公営水道、本下水、個別LPG プロパンガス,システムキッチン,カウンターキッチン,浄水器,トイレ2箇所,温水洗浄便座,浴室乾燥機,グルニエ,複層ガラス,ルーフバルコニー,床下収納,ディンプルキー,モニター付きインターホン,火災警報器等設置済,セットバック |
||
| 省エネ性能表示 | エネルギー消費性能:★★★~★★★★ 断熱性能:5段階~5段階 |
||
| 備考・制限等 | 駐車スペース車種により2台駐車可。 | ||
こだわり項目
- ※価格は物件の代金総額を表示しており、消費税が課税される場合は税込み価格です。(1,000円未満は切り上げ。)
税率は引き渡し時期により異なりますので、各物件の詳細につきましてはお問い合わせください。 - ※敷地権利が借地権のものは価格に権利金を含みます。
- ※制作中に内容が変更される場合もありますので、あらかじめご了承ください。
- ※購入の前には物件内容や契約条件についてご自身で十分な確認をしていただくようにお願いいたします。
- ※完成予想図はいずれも外構、植栽、外観等実際のものとは多少異なることがあります。
- ※CG合成の画像の場合、実際とは多少異なる場合があります。
周辺地図
周辺施設一覧
- ショッピングセンター
- スーパー
- コンビニ
- ドラッグストア
- ホームセンター
- 飲食店
- その他店舗
- 商店街
- 大学
- 専門学校
- 高校・高専
- 中学校
- 小学校
- 保育園
- 幼稚園
- 公民館・児童館
- 病院
- 郵便局
- 役所
- 図書館
- 金融機関
- 警察・消防
- 趣味・娯楽施設
- 公園・運動施設
- 周辺の街並み
- 駅
- その他
お問い合せ先
- 湘南レーベル(株)SLE不動産
- お電話でのお問い合わせは
0463-20-9664「ホームページを見た」とお問い合わせください - 神奈川県伊勢原市桜台1-9-7 堀井ビル1F
- 営業時間:AM09:30~PM18:30
- 定休日:火曜日・水曜日
- 免許番号:神奈川県知事(4)第026678号
- トップ
- 新築一戸建てをエリアから探す
- 厚木市
- 上依知
- 厚木市上依知 第30 全6棟 新築戸建
































