- トップ
- 新築一戸建てをエリアから探す
- 伊勢原市
- 高森
- 伊勢原市高森 第22 全7棟(今回販売2棟)新築戸建
伊勢原市高森 第22 全7棟(今回販売2棟)新築戸建
情報更新日:2025/11/03 次回更新予定日:2025/11/14 取引条件有効期限:2025/11/14
所在地神奈川県伊勢原市高森[周辺地図]
交 通小田急小田原線「愛甲石田」駅徒歩15分






◇「制振装置により、地震の揺れを抑え、耐震性能を維持!」
◇小田急線「愛甲石田」駅徒歩16分
◆第3者機関による「住宅性能評価書」取得住宅
◆基礎から屋根まで最長10年保証付き
◆平日や遅めの時間からのご見学も可能
◆閑静な住宅街に位置しており落ち着いた街並み
◆少しでもご興味がございましたらお気軽にお問い合わせ下さい
□■SLE不動産伊勢原店■□
【気になるお家は、お気軽にお問い合わせを♪】
住宅ローンがご心配の方は、実績のある弊社へお任せください。
その他、相続や不動産に関することはワンストップで対応致します。
※お電話の場合:0463-20-9664
※メールの場合:【資料請求】ボタンをクリックでお問い合わせください。
すべての画像
ご覧いただきありがとうございます。即日予約も承っておりますので、少しでも気になる方はお気軽にお問い合わせ下さい。
全体区画図
5号棟 広々としており南西向きで陽当り良好のLDK。全居室南西向きで建物全体が明るく感じられます。是非一度ご覧になってみてください。
7号棟 青々としたお空がとても気持ち良いですね。閑静な住宅街に新築戸建ての登場です。 2025/09/06m
5号棟
7号棟 2025/09/06m
5号棟 対面式キッチンは、家族の会話が増える素敵な間取りです。こちらのキッチンで美味しい料理と素敵な思い出をご一緒にどうぞ。
7号棟
5号棟 小田急小田原線「愛甲石田」駅徒歩16分。小・中学校、コンビニ・スーパーなども至近にございますので生活環境◎です。
7号棟 2025/09/06m
5号棟 広々としており南西向きで陽当り良好のLDK。全居室南西向きで建物全体が明るく感じられます。是非一度ご覧になってみてください。
7号棟 2025/09/06m
5号棟 清潔感のある対面式システムキッチン。LDKを見渡すことができ、開放感を感じられます。
7号棟 2025/09/06m
5号棟 清潔感のある対面式システムキッチン。LDKを見渡すことができ、開放感を感じられます。
7号棟 2025/09/06m
5号棟 2面採光のため、電気が無くても明るさを確保できております。
7号棟 2025/09/06m
5号棟 広々とした主寝室となっております。ごゆっくりとお過ごしいただけそうです。
7号棟 2025/09/06m
5号棟 2面採光のため明るいお部屋を実現しております。明るいお部屋は自然と気持ちまで明るくなってきそうです。
7号棟 2025/09/06m
5号棟 ルーフバルコニーは突発的な雨から洗濯物をお守りしてくれますね。
7号棟 前面は広々としておりますので、お車のすれ違いなどのストレスは少なそうです。 2025/09/06m
5号棟 各居室に収納を完備しておりますので、お部屋を最大限い広くお使い頂けます。
7号棟 2025/09/06m
5号棟 リビングでくつろぐも良し。和室でくつろぐも良し。ごゆっくりとお過ごしくださいませ。
7号棟 2025/09/06m
5号棟 洗面スペースには、3面鏡を完備しております。また、鏡の裏と足元にも収納がございますので、散らかりがちな洗面室もスッキリと出来そうです。
7号棟 2025/09/06m
5号棟 窓付きの浴室乾燥機付バスルーム。1坪以上のバスルームで快適なお風呂時間を。
7号棟 2025/09/06m
5号棟 トイレは1階と2階の両方に完備しておりますので安心ですね。
7号棟 2025/09/06m
5号棟 豊富なシューズボックスのある玄関。心地よい1日をここからスタート。
7号棟 2025/09/06m
5号棟 ちょっとしたお庭が付いておりますので、簡易的なガーデニング等も出来そうです。
7号棟 2025/09/06m
■浄水器一体型水栓
蛇口をひねれば、いつでも美味しい水が飲めるのは大きなメリットです。 ウォーターサーバーやペットボトルをその都度入れるのは大変ですが、シンク内の蛇口から浄水出れば楽に炊事ができますね。
■ガスコンロ
三ツ口コンロで、お料理の幅が広がります。グリル付き。
■キッチン 換気扇
掃除も行いやすいキッチンの換気扇です。換気扇用フィルターを利用すればお掃除も簡易に済みます。
■浴室乾燥機
基本機能は、乾燥、暖房、換気、涼風、24時間換気の5つです。それぞれの機能に特長があり、毎日使用するにあたり、季節に合った使用方法がありますので、浴室乾燥機は年間を通して使うことができます。
■三面鏡洗面台 シャワーヘッド付き
三面鏡は真正面から見ただけでは気付けない色んな角度から確認でき、収納スペースが豊富であるということがメリットです。 また、シャワーヘッド付きの水栓です。
■ウォシュレット付きトイレ
洗浄機能・脱臭機能を完備、開口窓も設け清潔な室内にすることが可能です。 また温水洗浄便座は、デリケートな皮膚などを清潔に保つことができ、便座も温度調節ができるので、寒い冬も快適にトイレに座ることが可能。
グラスウール断熱材
当社では社員や職人さんにガラス繊維協会の実践するマイスター認定の取得を奨励しています。同時に、断熱材自体の貼りやすさの研究も行い、キレイに貼りやすい断熱材の開発と貼り方の施工技術を構築し、実践しています。
ベタ基礎
全戸の基礎の主筋に、16mm鉄筋。 通常の木造住宅のベタ基礎工事においては、13mm鉄筋が多く使われます。しかし、当社では自主基準として全戸の基礎の主筋に16mm鉄筋を採用。
地震にも強い、安全・安心・快適設計
一級建築士事務所として培った、建築技術に加え、徹底した施工管理により、安心してお住まいいただける住宅をご提供いたします。
住宅性能評価《設計性能評価・建設性能評価》
5分野7項目で一番高い等級取得を標準化している 国に登録している第三者機関が、同一の基準によって、住宅の性能を10の分野で評価するものです。いわば、住宅の成績表みたいなものです。
担当スタッフより

- 岡本
- 小田急小田原線「愛甲石田」駅徒歩16分。全棟36.9坪超えのゆとりある区画となっております。少しでもご興味がございましたらお気軽お問い合わせ下さい。
各棟情報
物件詳細情報
物件No.20000416624
| 所在地 | 神奈川県伊勢原市高森 | ||
|---|---|---|---|
| 交通 | 小田急小田原線「愛甲石田」駅徒歩15分 小田急小田原線「伊勢原」駅バス11分 バス停「小金塚」停歩2分 相模線「門沢橋」駅徒歩61分 |
||
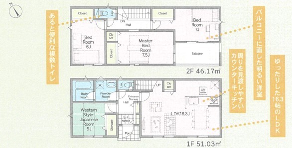
| 間取 | 4LDK~4LDK | ||
| 土地面積 | 122.04m² ~ 122.04m² 公簿 | ||
| 建物面積 | 93.15m² ~ 97.2m² | ||
| 販売戸数 | 2戸 | 総戸数 | 全7戸 |
| 構造・規模 | 木造 2階建て | 築年・入居 | 2025年10月 |
| バルコニー | 南向き | 建物現況 | 完成済 |
| 建築確認番号 | 第KBI-SGM25-10-1347号、他 | 駐車スペース | 2台(カースペース) |
| 引渡時期 | 即引渡可 | 国土法届出 | 不要 |
| 地目 | 宅地 | 用途地域 | 第一種住居地域 |
| 建ぺい率 | 60% | 容積率 | 200% |
| 都市計画 | 市街化区域 | 権利種類 | 所有権 |
| 接道 | 西側8.1M公道に接道 | 小学校区 | 伊勢原市立成瀬小学校(550m) |
| 中学校区 | 伊勢原市立成瀬中学校(950m) | 取引態様 | 媒介 |
| 設備 | 公営水道、本下水、個別LPG システムキッチン(浄水器付き)・ユニットバス・浴室乾燥機付き・ウォシュレット・シャワー付き洗面化粧台・ペアガラス・テレビモニターフォン付き・全居室収納あり・床下収納あり・カースペースあり・EVコンセント・庭・住宅性能評価書取得住宅 等 |
||
こだわり項目
- ※価格は物件の代金総額を表示しており、消費税が課税される場合は税込み価格です。(1,000円未満は切り上げ。)
税率は引き渡し時期により異なりますので、各物件の詳細につきましてはお問い合わせください。 - ※敷地権利が借地権のものは価格に権利金を含みます。
- ※制作中に内容が変更される場合もありますので、あらかじめご了承ください。
- ※購入の前には物件内容や契約条件についてご自身で十分な確認をしていただくようにお願いいたします。
- ※完成予想図はいずれも外構、植栽、外観等実際のものとは多少異なることがあります。
- ※CG合成の画像の場合、実際とは多少異なる場合があります。
周辺地図
周辺施設一覧
- ショッピングセンター
- スーパー
- コンビニ
- ドラッグストア
- ホームセンター
- 飲食店
- その他店舗
- 商店街
- 大学
- 専門学校
- 高校・高専
- 中学校
- 小学校
- 保育園
- 幼稚園
- 公民館・児童館
- 病院
- 郵便局
- 役所
- 図書館
- 金融機関
- 警察・消防
- 趣味・娯楽施設
- 公園・運動施設
- 周辺の街並み
- 駅
- その他
お問い合せ先
- 湘南レーベル(株)SLE不動産
- お電話でのお問い合わせは
0463-20-9664「ホームページを見た」とお問い合わせください - 神奈川県伊勢原市桜台1-9-7 堀井ビル1F
- 営業時間:AM09:30~PM18:30
- 定休日:火曜日・水曜日
- 免許番号:神奈川県知事(4)第026678号
- トップ
- 新築一戸建てをエリアから探す
- 伊勢原市
- 高森
- 伊勢原市高森 第22 全7棟(今回販売2棟)新築戸建






























